Kmalu bodo obnovili dva trakta gradu Borl, opuščen bazen pa spremenili v mlako

| v Kultura

Že leta 2015 so na ministrstvu za kulturo napovedali delno obnovo gradu Borl v Dolanah, dela pa naj bi se letos vendarle pričela. Kaj se bo na pečini nad Dravo dogajalo?

Na ministrstvu za kulturo so podpisali pogodbo za obnovitvena dela traktov A in B na gradu Borl. Gre za projekt Drava: Obnova in oživljanje gradu Borl.

Vrednost del znaša 1.414.496 evrov. Projekt je sofinanciran s strani Evropskega sklada za regionani razvoj v okviru Operativnega programa za izvajanje Evropske kohezijske politike v obdobju 2014-2020.

Za izvajalca je bilo izbrano koroško podjetje Kograd IGEM. Dela bo moralo dokončati v roku osmih mesecev od podpisa pogodbe in uvedbe v delo.

Po več desetletjih na Borl spet na kavo

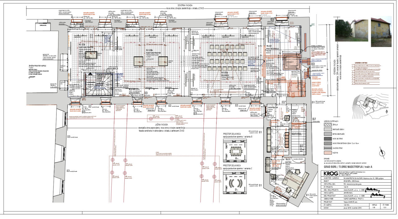
Ministrstvo za kulturo bo v sodelovanju z ministrstvom za okolje in prostor v delu borlskega gradu uredilo tako imenovani Interpretacijski center Drave. V ta namen bodo uredili severovzhodni ali A trakt gradu v pritličju in nadstropju ter severozahodni ali B trakt gradu, prav tako v pritličju in nadstropju.

V grajskem traktu A bo v pritličju interpretacijska predstavitev na temo 'Voda kot gonilo vsega'. V nadstropju bodo prostori za delavnice in dogodke na isto temo, prostori za kustose, sanitarije in dvigalo.

V traktu B nameravajo v pritličju urediti sprejemni del z informacijami, kavarno s sanitarijami, prodajalno izdelkov domače in umetne obrti ter kmetijskih pridelkov. V nadstropju naj bi uredili večnamensko dvorano za konference, koncerte, razstave in podobno.

Načrti za delno obnovo gradu Borlu so javno dostopni na tej spletni povezavi.

Poskrbeti bo treba tudi za požarno varnost

V Studiu za arhitekturo in grafično oblikovanje Krog so v načrtu arhitekture zapisali, da razen izvedbe dvigal in novega stopnišča posegi v nosilno konstrukcijo objekta niso predvideni: »Obnovile se bodo elektro instalacije, izvedlo ogrevanje stavbe in prezračevanje v okviru določil PURESa. Izvedle se bodo nove sanitarije, vključno s sanitarijami za gibalno ovirane. Obnoviti ali izvesti na novo bo potrebno komunalne priključke

Poleg tega bo za gašenje treba zagotoviti ustrezno količino vode.

Javno naročilo predvideva obnovo 195 kvadratnih metrov površin v prvi kleti, 538 kvadratnih metrov v pritličju in 560 kvadratnih metrov v prvem nadstropju.

Iz bazena bo nastala mlaka

Leta 1962 so namenu slovesno predali plavalni bazen ob takratnem letovišču na borlskem gradu. 23,5 krat 8,2 metra velik bazen je bil sprva velik uspeh, od leta 1975 pa je zapuščen in brez vode. Pred leti so neznanci celo razrezali del njegovega pločevinastega dna.

Zdaj naj bi bazen spet dobil namembnost, vendar nekoliko drugačno. V njem nameravajo urediti mokrišče oziroma mlako s trstičjem in močvirnimi rastlinami.

Leta prizadevnega dela vendarle obrodila sadove

»Sredstva se namenjajo obnovi objekta kulturne dediščine državnega pomena ob sočasni interpretaciji kulturne dediščine, povezane z biotsko raznovrstnostjo,« so pojasnili na kulturnem ministrstvu.

Na dobro novico so se že odzvali v Društvu za oživitev gradu Borl, kjer si za obnovo in oživitev kulturnega spomenika državnega pomena in v državni lasti prizadevajo od leta 2005: »Želimo si, da bi se dela čim prej začela izvajati in se v roku zaključila, da se grajska vrata čim prej spet odprejo.«

Komentarji

krmača

opuščen bazen pa spremenili v mlako ?
Za gojenje žab, žabji kraki, to je specialiteta !!

Ce drzava podpira kraje

in ce si lasti tuje premozenje bo to slabo za demokracijo

Komentarji

krmača

opuščen bazen pa spremenili v mlako ?
Za gojenje žab, žabji kraki, to je specialiteta !!

Ce drzava podpira kraje

in ce si lasti tuje premozenje bo to slabo za demokracijo

Lokalno

Vse v Lokalno

Šport

Vse v Šport

Kronika

Vse v Kronika

Politika

Gospodarstvo

Scena

Slovenija

Svet

Vse v Svet

Kultura

Vse v Kultura