Ta štajerska občina načrtuje vrtec, za katerega bodo starši stali v vrsti: Zelena prehodna streha in pogled na jezero

| v Lokalno

V Sveti Trojici načrtujejo gradnjo novega vrtca, ki pa bo eden najmodernejših v Sloveniji.

Na občini Sveta Trojica v Slovenskih goricah ugotavljajo, da morajo zaradi vedno večjega števila otrok nujno zagotoviti nov vrtec. Tako bodo lahko zagotovili ustrezno izvajanje vzgojno-izobraževalnega in vzgojno-varstvenega procesa. 

Gradnjo novega vrtca pa so si zamislili zelo smelo - načrtujejo namreč enega najmodernejših vrtcev v Sloveniji. 

Večji del zneska bo pokrilo ministrstvo

Investicija je ocenjena na nekaj čez dva milijona evrov z vključenim davkom. Občina bo sfinancirala 862.332 evrov, ministrstvo za izobraževanje, znanost in šport pa bo primaknilo 1.172.667 evrov.

Celotna investicija bo izvedena do leta 2024. Občina računa, da bodo lahko prvo lopato zasadili že leta 2023, je za Ptujinfo razkrila Darja Slivnjak, direktorica občinske uprave. 

Pogled na jezero, terase kot igralnice na prostem, streha pa prehodna

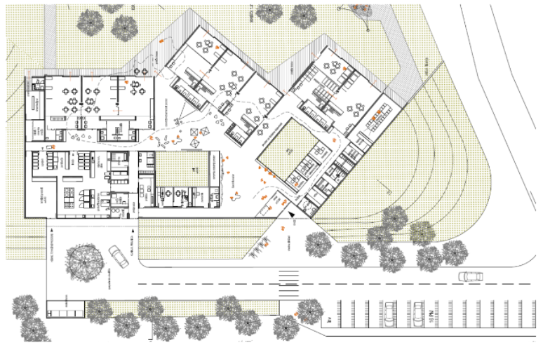
Načrtovan vrtec ima prav posebno zasnovo. Je pritličen, z desetimi igralnicami. Igralnice bodo na vzhodnem delu objekta, saj bo tako zagotovljena osončenost v različnih delih dneva, odpirali se bodo novi pogledi, otroci pa bodo uporabljali tudi igralnice na prostem. 

Najmlajši bodo svoje otroške dni tako preživljali v vrtcu, ki bo nudil odprt pogled na jezero in vzpetini ter cerkev Svete Trojice.

Orientacijo vrtca so določili zaradi zahteve po optimalni osvetljenosti igralnic, ki bodo v uporabi predvsem dopoldne in zgodaj popoldne. 

Posebna pa je tudi zasnova strehe, ki bo ozelenjena, prehodna in celo javno dostopna. Otroci pa bodo imeli pred igralnicami pritličja pod nadstreškom na razpolago osem teras v velikosti 24 kvadratnih metrov.

Prostor bo razdeljen na osem igralnic ter športno igralnico in večnamenski osrednji prostor, sanitarije in garderobe, shrambe za igrala in opremo, gospodarske prostore s kuhinjo in centralno pralnico ter prostore za strokovne delavce. 

Otrokom bo tako zagotovljenih 3344 kvadratnih metrov zunanjih zelenih in tlakovanih igralnih površin, ki bodo ograjene, sprejeli pa bodo lahko do 220 otrok

Preberite še

Komentarji

Albina

Super pevecl

Komentarji

Albina

Super pevecl

Lokalno

Vse v Lokalno

Šport

Vse v Šport

Kronika

Vse v Kronika

Politika

Gospodarstvo

Scena

Slovenija

Svet

Vse v Svet

Kultura

Vse v Kultura